Интерьеры

Румтур: интерьер в стиле «тихая роскошь» с разумным бюджетом

Автор: Ольга Качанова
03 марта, 2026
  • Марго
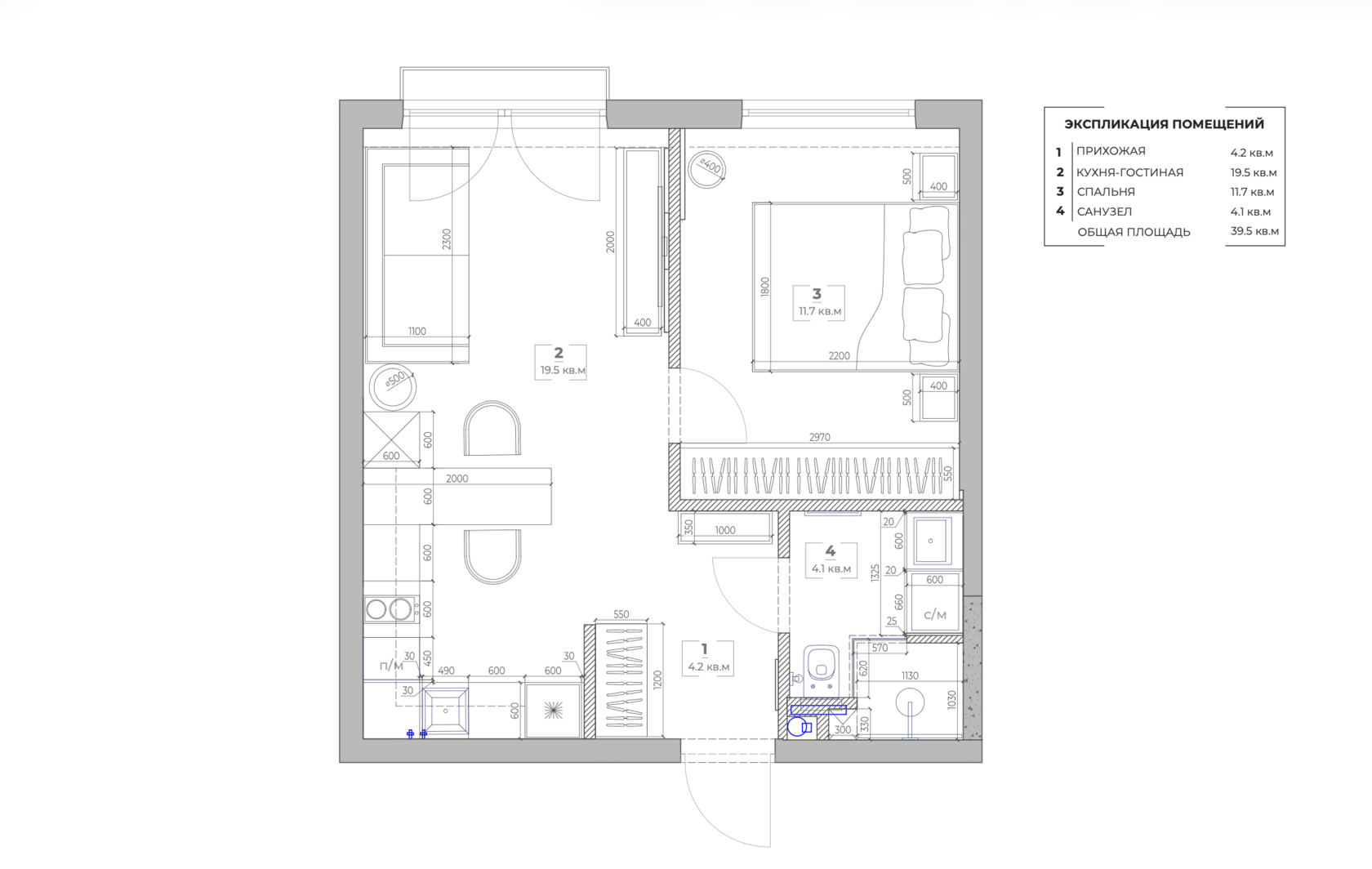
Одна спальня, одна ванная комната
Площадь 39,8 м²
Высота потолков 2,7 м


Наша героиня Марго увлекается диджеингом, любит эстетичные пространства и умеет планировать бюджет. Интерьер её квартиры — тот случай, когда ремонт не потребовал фантастических трат, а результат получился, как в бутик-отеле — с глянцевыми поверхностями, фактурой дерева и обилием текстиля.

Как удалось добиться такого эффекта? Смотрим румтур и отмечаем интересные приёмы: от материалов, достоверно имитирующих природные, до контраста форм и фактур.

Планировка

Это квартира в новом доме — с кухней-гостиной, одной спальней и одной ванной комнатой. Квартира комфортна для одного человека или пары, поэтому планировку не меняли.
Концепция

Почти весь интерьер собран в бутике Sky Living — благодаря подруге-дизайнеру, которая помогала Марго с обустройством интерьера:

«Меня зацепила эстетика, и я решила, что хочу работать именно с этой командой в своей квартире».

Sky Living — мультибрендовое пространство, которое объединяет мебель для дома, дизайнерскую сантехнику, свет, электроприборы и инновационные покрытия стен.

Цвет

Особое внимание уделили колористике — контрасту тёплых и холодных оттенков, а также матовых и глянцевых фактур. Даже входную дверь и наличники из МДФ подбирали строго в тон шкафам, чтобы интерьер выглядел как единый монолитный ансамбль. Только после того, как сочетания были идеально согласованы, к ним подобрали краску для стен.

Прихожая

Прихожая спроектирована с акцентом на функциональность: главный приоритет — вместительная система хранения. Шкафы изготовили на заказ из демократичного материала — ЛДСП, а на торце разместили большое зеркало. Кстати, зеркал в интерьере много, и не только в прихожей: они визуально расширяют границы, наполняют пространство светом.

Кухня

Кухня для Марго — это пространство, которое в первую очередь должно было радовать глаз. Несмотря на то, что Марго готовит «редко, но метко» (в основном для гостей или во время неспешных завтраков), здесь продумана каждая деталь. Двух конфорок на кухне оказалось достаточно, а главными помощниками стали тостер, кофемашина и чайник.

Изначально Марго планировала кухонные шкафы до потолка, но из-за бюджета заменила верхний ярус стеновыми панелями:

«Сейчас я понимаю, что это было лучшее решение: они перекликаются с отделкой в других комнатах и в ванной. Это качественный бамбук, оклеенный пленкой — у него отличная структура без навязчивых повторов рисунка».

Кухня от Лемана Про с глянцевыми фасадами оказалась очень вместительной: в пенале спрятан встроенный холодильник, а нижняя база оснащена удобными выдвижными ящиками. Ещё один пенал в кухонной линии — с секретом: в нём нет центральной полки, поэтому внутри идеально поместился пылесос и другой инвентарь для уборки.

Одним из самых удачных решений стала стойка для завтраков из ЛДСП: она обошлась всего в 40 тысяч рублей на всю площадь, но этот приём помог сохранить лоск и эстетику дорогого интерьера. Чтобы разбавить строгий хром, Марго добавила в интерьер женственные нотки: хрустальные подвесы с золотом и смеситель в тон.

Гостиная

Несмотря на компактные размеры, в гостиной есть всё — от места для спокойного отдыха до зоны, где можно принять друзей и даже поиграть за мини-диджейским пультом. Светлый ламинат, уложенный единым полотном, визуально расширяет пространство и сочетается со светлой отделкой стен.

Главный визуальный акцент — эффектная люстра, размер которой поначалу смущал Марго. Она имеет три режима (холодный, нейтральный и тёплый), а её внутренняя золотистая зеркальная поверхность добавляет интерьеру благородного блеска.

«Однако в повседневной жизни я предпочитаю камерную атмосферу, поэтому чаще включаю бра или мягкую подсветку, скрытую за ТВ-панелью».

У раскладного дивана — глубокая посадка и приятная на ощупь обивка. Его качественная строчка и удобная спинка располагают к расслаблению, а при необходимости он легко превращается в полноценное спальное место. Финальным штрихом и настоящим эксклюзивом стала объёмная цветочная скульптура на стене:

«Гостиная стала идеальным эстетичным фоном для съёмки моих рилс».

Спальня

Центральный элемент спальни — мягкое изголовье во всю ширину стены. Сбоку его дополняют панели, аналогичными тем, что установлены в гостиной: такой прием объединяет пространство всей квартиры в единую стилистическую историю. Прикроватные тумбы из искусственной кожи, со стеклянными столешницами — трендовой округлой формы: в спальне практически нет углов, что подчёркивает расслабляющую обстановку.

От традиционного основного освещения Марго решила полностью отказаться. Вместо него использованы подвесные светильники с золотыми деталями над тумбами и мягкая подсветка самих панелей, что создает интимную, расслабляющую обстановку.

Большое живописное полотно напротив изголовья — ещё один акцентный элемент в интерьере гостиной:

«Силуэт напоминает о море на закате, и это главное вдохновение моего утра: глядя на картину, я каждый раз предвкушаю будущий отпуск».

Окно оформлено шторами блэкаут: плотная ткань ложится в крупные, тяжелые складки. Интерьер завершает функциональная зеркальная линия шкафов во всю стену, которая визуально расширяет пространство и полностью решает вопрос хранения.

Ванная комната

Ванная комната — пространство личного ритуала, где Марго проводит много времени. Неудивительно, что этому пространству уделили максимум внимания:
«Чтобы создать атмосферу уединения, я часто выключаю основной свет и собираюсь при мягкой декоративной подсветке».
Ощущение дорогого интерьера создаёт микс современных и традиционных приёмов.

Так, интерьер выполнен в светлых оттенках с отделкой из керамогранита под мрамор: этот приём в дизайне ванной — нестареющая классика. При этом ванне Марго предпочла технологичную душевую кабину. Особое внимание уделили деталям: в душе установлен смеситель, встроенный в стену, с необычной лейкой, а на раковине — аналогичный встроенный смеситель, смонтированный прямо в столешницу.

Вопрос функциональности решён очень деликатно. Компактный сенсорный полотенцесушитель почти не занимает места. Стиральная машина полностью скрыта за панелями-обманками: фасады имитируют горизонтальные ящики, но в действительности служат только для того, чтобы скрыть машинку — и легко распахиваются. Чтобы косметика, которая нужна ежедневно, не загромождала поверхности, предусмотрены три открытые полки — самое важное всегда под рукой.

Другие интересные приёмы:

  • При планировании бюджета Марго учитывала свои приоритеты: не экономила на качественном освещении и декоре, но выбрала бюджетную кухню. Логика проста: декор и аксессуары формируют настроение интерьера каждый день, попадают в кадр при съёмке рилс; кухня — используется по случаю, когда приходят гости.

  • В интерьере использовано ограниченное количество оттенков и материалов: это делает его визуально цельным. Объёма и наполненности добавляет контраст фактур: глянцевых и матовых поверхностей, прямых линий и округлых форм — особенно в дизайне светильников.

  • Грамотная работа с зеркалами кратно увеличивает количество света и расширяет пространство. Зеркала в зоне гостиной и спальне — от пола до потолка: такие решения особенно подходят минималистичным пространствам с выверенной эстетикой, без случайных деталей.

  • Эргономика проекта тщательно рассчитана даже в деталях. Душевая спроектирована так, чтобы тумба не мешала полностью открывать стеклянную створку; для унитаза предусмотрена комфортная ниша: расстояние от стены до душа достаточно для взрослого человека любой комплекции.
Смотрите обзор на VK Видео

Промокод!

Специальное предложение от SkyLiving по промокоду "Качанова" — скидка 50% на весь ассортимент коллекции Odry и скидка 5% на весь ассортимент диванов



МЦ Гранд: Московская область, г. Химки, ул. Бутаково, дом 4, этаж 3
тел.: +7-932-021-99-97, +7-499-916-60-10
Реклама. ООО «ТОРИ» ИНН 5008061090 Erid:
Читайте также: